




dont 1,00 € d'éco-participation
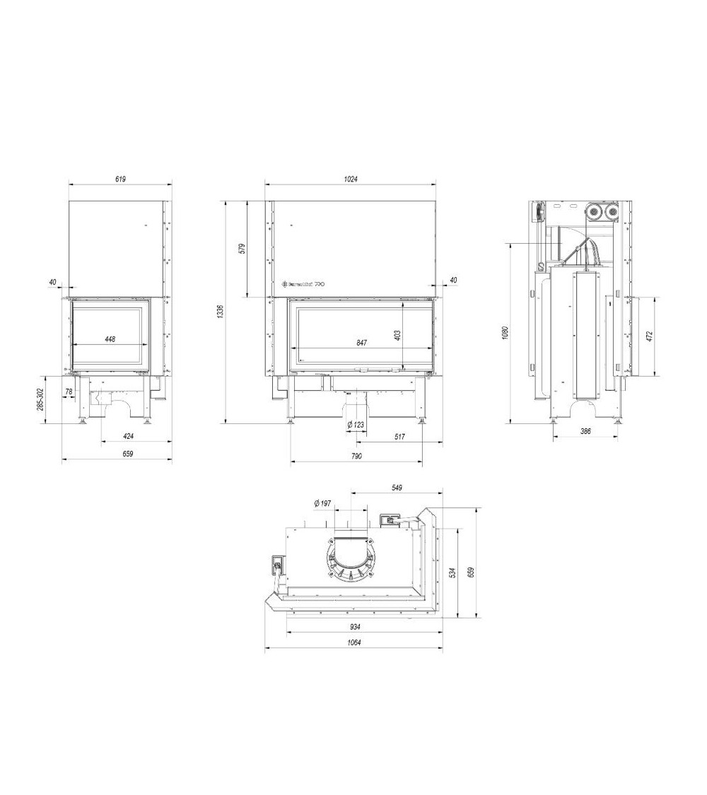
Spécifications techniques
Puissance nominale (kW) 14,0
Gamme de puissance de chauffage (kW) 6,5 - 17,0
Efficacité (%) 80,0
Diamètre de sortie d'échappement (mm) 200
Norme ECODESIGN
Conçu pour l'unité de récupération de chaleur Oui
Type de combustible recommandé : bois dur assaisonné avec humidité ≤20%
Poids (kg) 255,0
Emission de CO (à 13% O 2) ≤ donnée en% 0,09
Température des gaz de combustion (℃) 245,0
Longueur maximale de la bûche (cm) 70
Émission de poussières (mg / Nm 3 ) 39,0
Norme BImSchV 2
Indice d'efficacité énergétique EEI 105,40
Champ minimum actif des grilles d’échappement (cm 2 ) ≥900
Champ actif minimum des grilles d’admission (cm 2 ) ≥700
Type de vitrage latéral
Ouverture des portes guillotine, à gauche
Matériel acier
Largeur (cm) 106,40
Hauteur (cm) 133,60
Profondeur (cm) 65,90
Prise d'air Oui
Système Double Combustion Oui
Verre imprimé décoratif Oui
Garantie de 5 ans.

UTILISATION MAXIMALE DE L'ÉNERGIE
Le corps et la face avant de l'insert sont résistants aux températures élevées grâce à l'acier de haute qualité utilisé dans la production.
Processus de combustion efficace et maintien de la température pour conserver la chaleur plus longtemps grâce au revêtement de la chambre de combustion en Acumotte - un matériau accumulateur de chaleur qui élève la température dans la chambre de combustion.
Combustion de particules de carburant grâce au déflecteur, qui prolonge le trajet des gaz d'échappement.
Réglage de l'air avec un seul régulateur empêchant une utilisation incorrecte.
Système triple air de la chambre de combustion: air primaire dirigé vers la plaque de combustion; air secondaire fourni par les trous situés dans la paroi arrière. De plus, le système de verre purificateur d’air a été appliqué (rideau d’air).
La propreté de la chambre de combustion grâce au foyer hexagonal.
SÉCURITÉ AU PLUS HAUT NIVEAU
Etanchéité parfaite grâce aux soudures massives réalisées dans un blindage anti-gaz noble.
Tous les éléments en acier sont coupés au laser et pliés sur des plieuses à commande numérique.
La face avant de l'insert est équipée d'une céramique résistant à la chaleur qui résiste à des températures allant jusqu'à 660 ° C.
COMBUSTION ECOLOGIQUE
L'unité répond aux exigences des normes d' EcoDESIGN et aux restrictions de la norme BImSchV 2 , qui détermine les émissions de CO maximales.
FACILE À UTILISER
L'énergie thermique obtenue à partir du bois de chauffage est exploitée au maximum.
Réduction des dépôts de suie grâce à un système de verre pur (rideau d'air).
Système d'ouverture à deux portes - ASCENSEUR (guillotine) et ouverture latérale. facilite le chargement du bois et le mécanisme de l'ouverture de la porte latérale permet de nettoyer le verre.
Il peut être utilisé dans diverses conditions de montage grâce aux pieds réglables et à la sortie de fumée mobile avec régulation à 360 °.
DESIGN MODERNE
Verre décoratif résistant à la chaleur pouvant supporter des températures allant jusqu'à 660 ° C. Il donne à une cheminée un look moderne et élégant, agrandit visuellement l'avant de l'insert.
Un insert de cheminée avec deux vitres compilées les unes aux autres selon des angles (sans crochets).
Poignée coulissante élégante et confortable.
Fiche technique